Ssht, hier draait een CTC Warmtepomp…
Lamont verwarming kiest voor een modulerende CTC lucht/water warmtepomp EcoAir 622M, in combinatie met het intelligente multi-energievat EcoZenith i555 Pro en de FKS zonnecollectoren
Even een schets vooraf: zaakvoerder Matthias Lamont van Installatiebedrijf Lamont uit Pittem zocht naar een ecologische en energie-efficiënte oplossing voor zijn nieuwe maatschappelijke zetel annex woongedeelte, voor de verwarming van het geheel en voor de voorziening van véél sanitair warm water.
Daarnaast was hij bij het opstellen van zijn studie overtuigd dat de implementatie van zonnecollectoren een toekomstgerichte meerwaarde kon betekenen.
Als overtuigde CTC-partner/installateur aarzelde hij niet om te kiezen voor CTC, dè Zweedse referentie op warmtepompvlak. Met de plannen, de EPB-voorstudie en de eisenbundel gingen Matthias Lamont en het CTC-team aan de slag om tot een ideale opstelling te komen
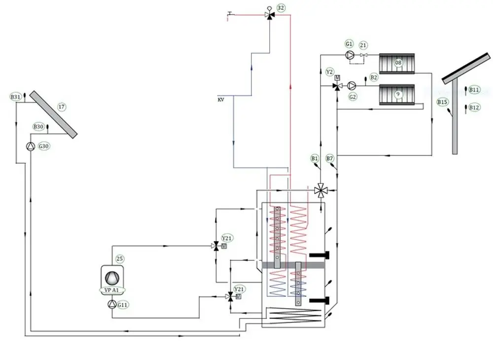
Er werd gekozen voor een lucht/water warmtepomp, gecombineerd met het intelligent multi-energie buffervat EcoZenith i555 Pro. De FKS-zonnecollectoren waren een logische bijkomende keuze uiteraard.
We geven enkele voorafgaande eisen en resultaten mee waar we samen (met weinig moeite) rekening mee moesten houden:
Geluid: de buitenunit diende als reclamebord te worden opgesteld aan de voorzijde van de kantoorruimte/werkplaats… Geluid, een belangrijk en heikel punt uiteraard, diende tot het minimum te worden herleid.
De CTC lucht/water buitenunits, in dit geval een modulerende lucht/water warmtepomp EcoAir 622M (modulerend van 4,5 tot 22 kW), staan bekend als de stilste in zijn categorie. Met een geluidsniveau van 55 db op 1 meter afstand, mag deze warmtepomp als de stilste op de markt worden beschouwd. Vergelijk dit geluid met zeer lichte regen of een nieuwe koelkast op 1m afstand…
Weet ook dat 3 db een verdubbeling of halvering van het geluid betekent. We geven u dit maar even mee indien u andere aanbieders zou evalueren.
Energie-efficiëntie: CTC moest zich nu ook maar eens bewijzen op energetisch vlak. Papier en theorie zijn zeer gewillig en de bedoeling was om, aan de hand van permanente metingen, de energie-efficiëntie te controleren. Het was van bij het begin immers de bedoeling dat Matthias de resultaten kon gebruiken bij zijn potentiële klanten en zo de CTC-kaart op een gerichte en overtuigende manier kon bewijzen. De eerste resultaten waren alvast boven verwachtingen! Met een COP (performantie-coëfficiënt) van 5.71 bij een buitentemperatuur van +7°C is deze oplossing kortweg de max. De SCOP (seizoensgebonden COP) van 4,9 ziet er nog mooier uit. Het CTC-team had dus zijn woord gehouden…
Compactheid en eenvoudige installatie: Matthias heeft al heel wat ervaring met CTC-installaties. Hij wist dus al dat zijn toch wel ruime technische ruimte, welke dienst doet als “showroom in functie” niet overladen zou worden met extra buffers, externe regelingen enz…
De opstelling (zie foto’s) is een juweeltje om te zien. 1 buffervat met SWW capaciteit van 600 liter in doorstroom, met intelligente regeling voor CV, sanitair warm water, pompgroepen/kringen, de regeling en pompgroepen van de zonnecollectoren, de collectoren voor sanitair warm water en vloerverwarming… op zo’n compacte manier vakkundig geïnstalleerd door Matthias. Top!
Koeltechnische handelingen? Vergeet het! Alle warmtepompen van CTC zijn monobloc wat zoveel betekent als dat ze af fabriek koeltechnisch volledig klaar zijn en ultiem getest op lekken en performantie. Afgekeurde toestellen belanden op de schroothoop van de CTC productie-eenheid. Het betekent eveneens dat de installateur geen enkele koeltechnische handeling dient uit te voeren, waardoor een persoonlijke koeltechnische certificering geen vereiste is. Alle parameters van het koeltechnische zijn af te lezen in het servicemenu van de intelligente regeling, waardoor het aansluiten van manometers verleden tijd is.
Lage temperatuur en het magische woord “modulerend”: kiezen voor een modulerende warmtepomp stond binnen dit buiten kijf. Met een modulerend karakter vanaf 4,5 tot 22 kW was dit dè ideale keuze voor de lucht/water opstelling. Uiteraard zonder het gebruik van weerstanden (een vies woord niet?) Het juiste vermogen op het juiste moment! Dat het E-peil van het nieuwbouwproject hierdoor met 3 à 4 punten ging zakken en Matthias daardoor een korting van om en bij de 4 à 5000 euro op de onroerende voorheffing gedurende 10 jaar zou genieten… Geen tekeningetje vereist natuurlijk.
Gemakkelijke bediening van de centrale regeling: “Intuïtief”, als er één woord moet gebruikt worden over de centrale regeling van de CTC-producten dan is het woord “intuitief” zeker op zijn plaats.
Met zijn ervaring wist Matthias dit uiteraard al. Andere woorden die in het rijtje van de intelligente regeling passen zijn: gemakkelijk, swipen in alle richtingen, Smart Grid ready, capaciteitstarief ready, geen codes bij alarmen en meldingen maar gerichte omschrijvingen, …
Het moet gezegd: de CTC regelingen wijzen zichzelf uit.
De service-menu’s, exclusief toegankelijk voor de installateur en de CTC-servicetechnieker, openen een veelheid aan instellingen, de logbestanden kunnen bewaard worden op USB-stick om zodoende op een later ogenblik alles uit te lezen waar nodig
Garantie? 2 jaar wordt 5 jaar!
Nadat de volledige opstelling van Matthias was geïnstalleerd, werd de installatie onder asssitentie van de CTC-servicetechnieker/expert (Xavier Vermeeren) opgestart. Instellingen werden gekeurd en gemeten, het componentenspel werd gecontroleerd, waar nodig werden parameters volgens wens en comforteis aangepast (uiteraard via de centrale intelligente regeling op het EcoZenith i555 buffervat), waarna de gehele installatie kon worden opgestart.
Doordat Matthias de assistentie van de CTC-servicetechnieker had gevraagd kon en kan hij rekenen op de uitbreiding van de fabrieksgarantie. De wettelijke 2 jaar werd uitgebreid naar 5 jaar! Zekerheid troef dus.
Smart Grid? Met het wegvallen van de terugdraaiende teller zorgt CTC reeds 7 jaar voor een slimme oplossing. Wanneer PV-panelen een overproductie genereren, zorgt de intelligente regeling CTC voor de omzetting van deze elektrische overschotten naar een buffering onder de vorm van thermische warmte in het buffervat. Het buffervat zal dus als thermische batterij optreden.
Interesse of wenst u meer info over de CTC-waarden en producten? Contacteer ons via het centrale telefoonnummer 056/ 56 42 89 77 of via info@ctcbenelux.com.

